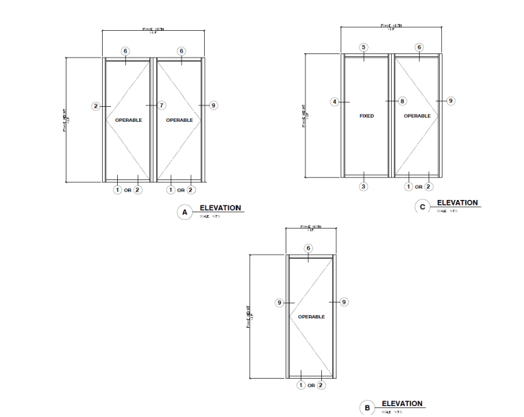
Benra & Dual Tilt Windows & Doors’ Terrace Doors are available in both standard and custom sizes to match nearly any design, either new or retrofit. They are perfect in design and functionality.
They are proficiently engineered with a double seal weather-stripping to prevent air and water infiltration, plus engineered pressure equalization. Tubular vents and frame for strength. European hardware. Flush exterior aluminum, with glazing 1” thick thermal insulating safety glass. Frame adaptable to masonry, curtain wall, gasket wall, and any other types of openings. Thermal barrier is structural polyurethane separating the aluminum extrusion for superior resistance to heat and cold transmission and also reducing noise transfer.
Its value cost- effective price, multi point locking system, and custom style availability offers builders and architects a very unique product for any type of opening in both residential and commercial properties. Aluminum units help highlight the clean lines of contemporary design; Not only are they beautiful, they are extremely durable to achieve unique architectural vision. 